Skip to content

MBI Issues Policy Position on Tariffs & Their Impact on Modular Construction. Read the statement here.

Home  |  Contact Us  |  Member Login  |  Contribute

NEOM NC1

Company: POJI AB
Affiliates: SIBS, MOKO
Location: Neom, Tabuk, Saudi Arabia
Gross Size of Project: 1,829,863 Square Feet
Days to Complete: 291

Award Criteria

Architectural Excellence

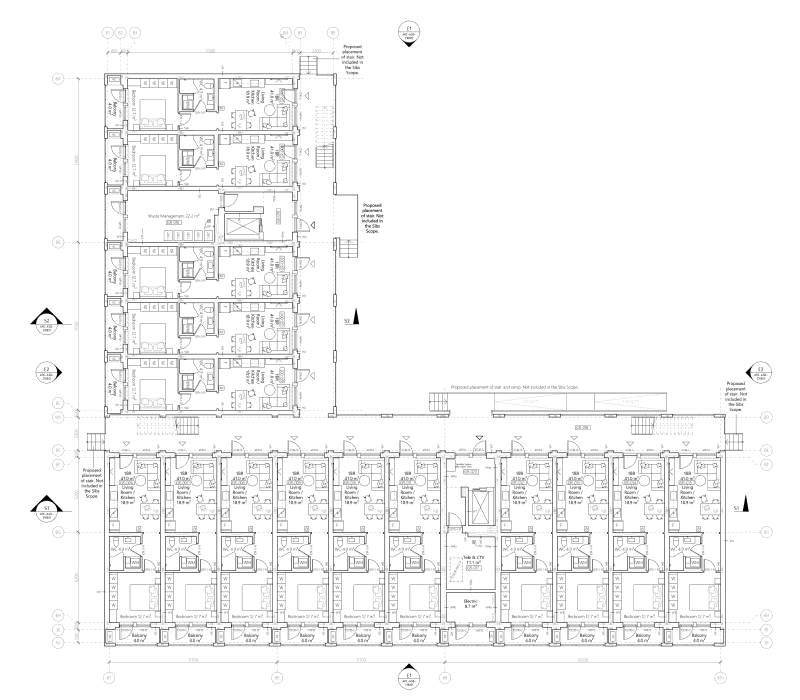
SIBS development on NC1 exemplifies how modular construction can drive sustainable urban development. The block features varied building heights (2–4 stories), arranged around semi-private green courtyards, and active ground floors with live-work units, retail, offices, and a preschool, creating a lively and inclusive environment.
Each apartment includes a shaded balcony, and the modular system enables flexibility, mass customization, and high prefabrication. Public spaces are designed to transform streets into vibrant urban pathways and introduce workplaces to the area.
Environmental features include solar panels, geothermal heating, and high energy efficiency. The project reflects SIBS’s strong collaboration with local stakeholders and its commitment to social sustainability, innovation, and community engagement—delivering a future-proof living concept.

Technical Innovation & Sustainability

SIBS modular construction enables rapid, flexible residential development with high architectural variation. Offsite precision engineering and robotic manufacturing ensure tight tolerances, enhancing airtightness, acoustics, and vibration control. Modules can be delivered fully furnished, reducing on-site work and enabling relocatability. Design automation halves planning time, while parametric systems meet diverse regulatory and aesthetic needs. Material efficiency is achieved through reduced concrete use and direct sourcing, yielding ~15% cost savings. The system supports green building via minimized waste, energy-efficient assembly, and reuse of components.

Cost Effectiveness

SIBS modular construction achieves cost-effectiveness through factory-based production, reducing labor costs and material waste. Modules are pre-finished with kitchens, bathrooms, and sometimes furnitured, minimizing on-site work. Installation is rapid, electrical and plumbing connections take under one hour per unit. Materials like steel, gypsum, and insulation are sourced directly, yielding ~15% cost savings. The plug-and-play system allows integration with conventional podiums and supports relocatability via dismantlable connectors. Partnerships with subcontractors and automated design tools further streamline timelines, cutting design phases by 50% and total construction time by over 40%.

See More Awards of Distinction Winners

To view all our current honorees, visit our main Awards page.