Skip to content

MBI Issues Policy Position on Tariffs & Their Impact on Modular Construction. Read the statement here.

Training Classrooms & Administrative Offices — Institute of Public Security of Catalonia

Company: Tecno Fast Group
Affiliate: Institut de Seguretat Pública de Catalunya (ISPC)
Location: Barcelona, Catalunya, Spain
Gross Size of Project: 15,113 Square Feet
Days to Complete: 189

Award Criteria

Architectural Excellence

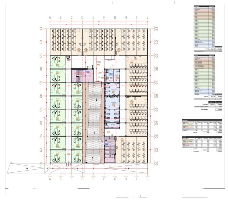
The classroom and administrative building is organized over two clear levels (GF+1). Twelve classrooms and twenty-eight offices sit in efficient bands, with corridors that simplify wayfinding and allow passive supervision. Clear heights of 2.70 m, generous openings, and integrated solar shading bring abundant daylight and comfort. Outside, calm, modulated volumes sit on a plinth; an exterior stair orders entries and acts as a campus landmark. The scheme employs 78 prefabricated 6×3 m modules in regular bays, allowing growth or reconfiguration without losing façade rhythm. Inside, warm finishes and tunable lighting elevate the spatial experience. The siting respects campus axes and flows, delivering a compact, efficient plan that fits gently within its context.

Technical Innovation & Sustainability

Conceived under DfMA, over 80% of the project was fabricated off-site with pre-commissioned services and finishes, reducing waste, errors, and site disruption. HVAC and ventilation are zoned with heat recovery and remote BMS control; lighting is daylight- and presence-responsive to curb energy use and glare. A greywater plant feeds cisterns; timed taps and consumption monitoring reinforce savings. The envelope adds solar control and a service roof to optimize thermal and acoustic performance. Universal accessibility and full material traceability support quality. Being demountable and relocatable—with less than 5% loss—the system enables circularity, simple maintenance, and rapid responses to new demands.

Cost Effectiveness

Factory standardization of structure and finishes compressed time and cost: 78 modules were craned and interconnected in about five days over prepared foundations. Fewer on-site hours and lower risk meant fewer contingencies and tighter budget control. In operation, OPEX drops through a lighting power density of 3.5 W/m² in classrooms, remote BMS control, sensors, and timed faucets. A 10,000-L greywater tank reduces potable use and charges cisterns. Shop-floor quality lowers defects and maintenance; optimized waste management reduces hauling and disposal. Demountability preserves residual value and enables a second life, improving IRR. Close coordination between client, design, and manufacturer streamlined procurement, logistics, and commissioning.

See More Awards of Distinction Winners

To view all our current honorees, visit our main Awards page.